Beside the most acknowledged transmission routes of the worldwide SARS-CoV-2 pandemic (surfaces contact and direct droplets transmission), the significance of airborne aerosols as a transmission route has received growing attention. Therefore, new questions rise concerning the effect of ventilation systems on the virus spreading.
Projektdetails
- Forschungsfeld
- Gesundheit und Bau
- Hochschule/Institut
- Hochschule für Architektur, Bau und Geomatik FHNW / Institut Nachhaltigkeit u.Energie am Bau

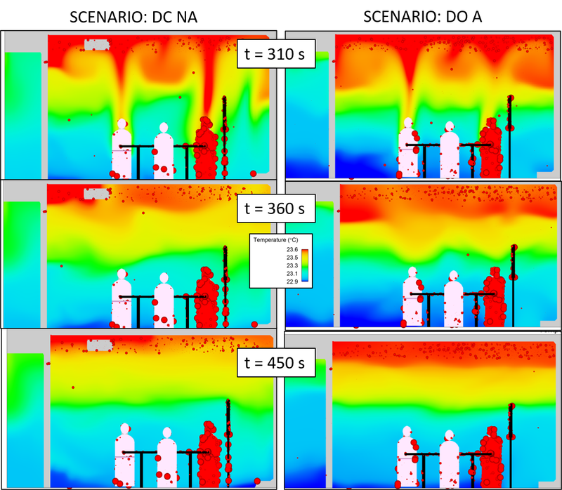
The focus of the research project described here is on the ventilation system of the KUBUK building (FHNW, Muttenz). Specifically, the focus is on ventilation systems with spaces that have weakly specified air inlets and outlets.
The research project includes an extensive literature survey to provide information on necessary assumptions for the simulation. In a next step, necessary information specific to the ventilation of the building is gathered and a representative room is defined and modelled in the CFD software. The numerical results are checked/validated by measurements of the air velocity in the vicinity of the air inlet. The leading questions for the CFD simulations are to provide tentative operation guidelines for meeting rooms in the KUBUK.

Finanzierung:
FHNW
Hochschule für Architektur, Bau und Geomatik
Laufzeit:
2020 - 2021
