Zu Hauptinhalt springenZur Suche springenZu Hauptnavigation springenZu Footer springen
Logo der Fachhochschule Nordwestschweiz
  • DE
  • Startseite

Zehn Hochschulen Ein Ziel

Die FHNW umfasst 10 Hochschulen mit unterschiedlichen Schwerpunkten. Wählen Sie eine Hochschule aus, um deren spezifische Kurse, Studiengänge und Informationen zu sehen.

Angewandte Psychologie

Architektur, Bau und Geomatik

Gestaltung und Kunst

Informatik

Life Sciences

Musik

Pädagogische Hochschule

Soziale Arbeit

Technik und Umwelt

Wirtschaft

  • Studienangebot

    • Alle Studiengänge
    • Bachelor-Studiengänge
    • Master-Studiengänge
    • Info-Anlässe
  • Rund ums Studium

    • Erfahrungsberichte
    • Informationen zum Studium
  • Internationales Studium

    • Informationen zum internationalen Studium
  • Weiterbildungsangebot

    • Alle Weiterbildungen
    • MAS - Master of Advanced Studies
    • DAS - Diploma of Advanced Studies
    • CAS - Certificate of Advanced Studies
    • Kurse / Fachveranstaltungen
    • Info-Anlässe
  • Forschung

    • Forschungsfelder
    • Forschungsprojekte
  • Zusammenarbeit

    • Dienstleistungen
  • Neuigkeiten und Einblicke

    • News und Storys
  • Veranstaltungen

    • Alle Veranstaltungen
    • Info-Anlässe
  • Medienkontakt

    • Medienmitteilungen
  • Über die Hochschule für Architektur, Bau und Geomatik

    • Hochschulleitung
    • Medienkontakt
    • Personenverzeichnis
  • Institute

    • Institut Architektur
    • Institut Bauingenieurwesen
    • Institut Digitales Bauen
    • Institut Geomatik
    • Institut Nachhaltigkeit und Energie am Bau
Logo der Fachhochschule Nordwestschweiz
  • Zur Hochschule
    • Hochschule für Architektur, Bau und Geomatik
    • Studium
    • Weiterbildung
    • Forschung und Dienstleistungen
    • Medienkontakt
  • Social Media
    • LinkedIn
    • Instagram
    • YouTube
    • TikTok
  • Die FHNW
    • Organisation
    • Hochschulen
    • Standorte
    • Bibliothek FHNW
    • Jobs und Karriere
    • Medienkontakte
  • Support
    • IT-Support
    • Inside FHNW
    • Webmail
  • Datenschutz
  • Impressum
  • Accessibility
  • Studienangebot

    • Alle Studiengänge
    • Bachelor-Studiengänge
    • Master-Studiengänge
    • Info-Anlässe
  • Rund ums Studium

    • Erfahrungsberichte
    • Informationen zum Studium
  • Internationales Studium

    • Informationen zum internationalen Studium
  • Weiterbildungsangebot

    • Alle Weiterbildungen
    • MAS - Master of Advanced Studies
    • DAS - Diploma of Advanced Studies
    • CAS - Certificate of Advanced Studies
    • Kurse / Fachveranstaltungen
    • Info-Anlässe
  • Forschung

    • Forschungsfelder
    • Forschungsprojekte
  • Zusammenarbeit

    • Dienstleistungen
  • Neuigkeiten und Einblicke

    • News und Storys
  • Veranstaltungen

    • Alle Veranstaltungen
    • Info-Anlässe
  • Medienkontakt

    • Medienmitteilungen
  • Über die Hochschule für Architektur, Bau und Geomatik

    • Hochschulleitung
    • Medienkontakt
    • Personenverzeichnis
  • Institute

    • Institut Architektur
    • Institut Bauingenieurwesen
    • Institut Digitales Bauen
    • Institut Geomatik
    • Institut Nachhaltigkeit und Energie am Bau

Geben Sie einen Suchbegriff ein und suchen Sie nach Weiterbildungen, Studienangeboten, Veranstaltungen, Dokumenten und anderen Inhalten.

  • Architektur, Bau und Geomatik
  • Forschung und Dienstleistungen
  • Forschung in Architektur, Bau und Geomatik
  • Forschungsprojekte
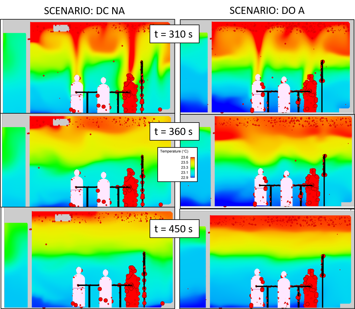
  • Preliminary study «Ventilation systems and COVID-19”
Preliminary study «Ventilation systems and COVID-19”

_Media, Hochschule für Architektur, Bau und Geomatik FHNW

Hochschule für Architektur, Bau und Geomatik


Topimage_VS-CO.jpg

Topimage_VS-CO.jpg

VS-CO1.png

VS-CO2.png

teaser_vs-co_teaser.png

Hochschule für
Architektur, Bau und Geomatik Fachhochschule Nordwestschweiz FHNW

  • Zur Hochschule
    • Hochschule für Architektur, Bau und Geomatik
    • Studium
    • Weiterbildung
    • Forschung und Dienstleistungen
    • Medienkontakt
  • Social Media
    • LinkedIn
    • Instagram
    • YouTube
    • TikTok
  • Die FHNW
    • Organisation
    • Hochschulen
    • Standorte
    • Bibliothek FHNW
    • Jobs und Karriere
    • Medienkontakte
  • Support
    • IT-Support
    • Inside FHNW
    • Webmail
Logo FHNW - 20 Jahre
Logo Swiss Universities
Logo European University Association
© FHNW Fachhochschule Nordwestschweiz
  • Datenschutz
  • Impressum
  • Accessibility
  • DE